縁を紡ぐ緑
温室に包まれた柔らかな共同体としての集合住宅(B4 清水達)
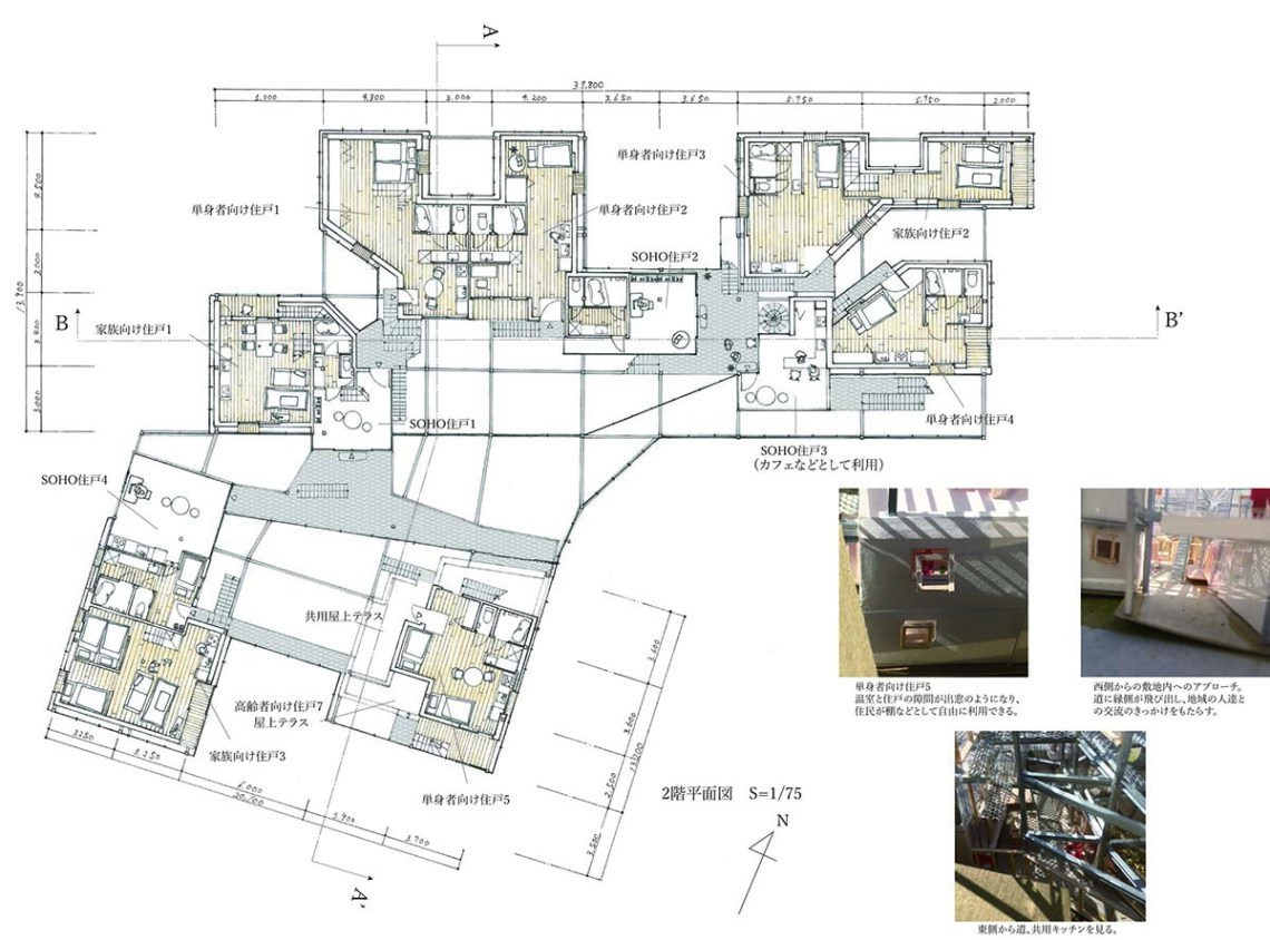
現在、核家族や単身者の増加で共に暮らす家族の規模は縮小している。女性の社会進出、晩婚化、未婚率の上昇、死別など様々な要因により、若い世代に限らず中年、高齢者でも単身者が増加している。また持ち家もメンテナンスコストや、バリアフリーへの未対応の問題から手放され、多くの単身者や高齢者が賃貸住宅で生活している。よって本計画では、単身者や高齢者が互いに繋がりを持って豊かに暮らすことの出来る集合住宅を提案する。敷地は長野県松本市田川地区渚の一画とした。松本駅の西側、奈良井川と田川に挟まれた地域であり、田川地区は駅に近く、集合住宅が比較的多く建ちち並ぶ地区である。しかしながら多くの集合住宅は片廊下型の共用部に同じ平面の専有部が並ぶ一般的な形式となっており、地域や同じ集合住宅に住む人々との繋がりは希薄なものになっていると言える。そのような状況を踏まえ、一つの柔らかな共同体としての集合住宅を提案する。具体的には、人同士の繋がりを創り出すために、お互いに共有できるものが必要になると考え、人間の根源的な食に繋がる畑を設け、これを共同で使用する形の、温室に包まれた集合住宅とした。また、コミュニティ形成には建築化された外部空間が効果的であると考え、全体が温室空間となる構成とし、その内部に住戸が入れ子状に配置される形式としている。高齢者用、単身者用、核家族用、SOHO付きの四種類の住戸タイプを設定し、すべての住戸のプランを変えることで様々な生活者の受け皿となるよう計画した。1階に高齢者を中心とした住戸と付属する縁側、縁側に囲まれた畑が広がり、また、2,3階へ繋がるアプローチの横にSOHO付き住戸を配置し、開放的な共用空間としている。敷地を横断する道沿いに共用で使用できるキッチン、屋上に共用スペースを設け、多世代と地域が繋がるよう設計した。





